Schenkhaus
Schenkhaus


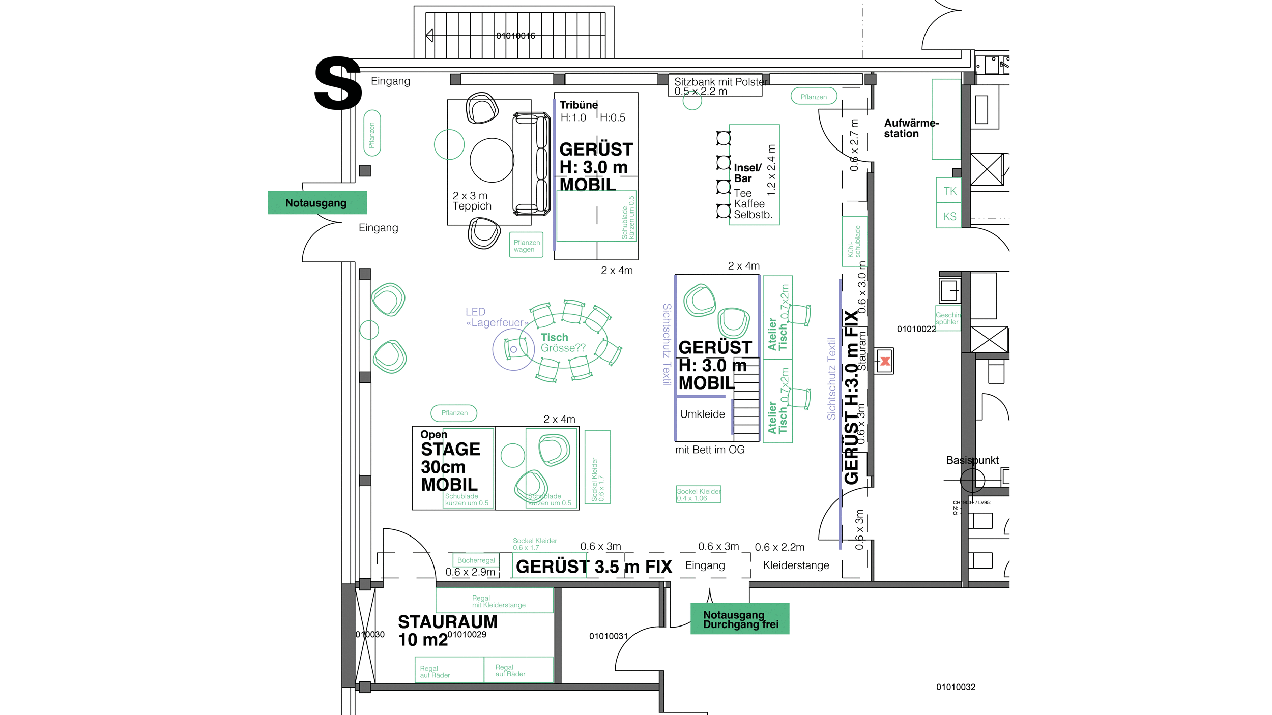
Für das Schenkhaus durfte ich die neue Location bespielen. Die Baugerüste führen den industriellen Charakter des letzten Standorts weiter. Gemietet auf Zeit und frei verschiebbar reagieren sie auf die befristete, vielseitige Nutzung.
LEISTUNGEN:
– Interior Design
– Farb- / Materialkonzept
Für das Schenkhaus durfte ich die neue Location bespielen. Die Baugerüste führen den industriellen Charakter des letzten Standorts weiter. Gemietet auf Zeit und frei verschiebbar reagieren sie auf die befristete, vielseitige Nutzung.
LEISTUNGEN:
– Interior Design
– Farb- / Materialkonzept
KUND:IN
Reformierte Kirche Zürich
KUND:IN
Reformierte Kirche Zürich
ProjeKtTYP
Interior Design
ProjeKtTYP
Interior Design
ZEITRAUM
Herbst 2025
ZEITRAUM
Herbst 2025

Der Raum bleibt in Bewegung.
Der Raum bleibt in Bewegung.
Verschiebbare Baugerüste aus Tribüne, Turm und Bühne ermöglichen flexible Szenarien – vom Konzert, über Kleidertausch, bis zum täglichen Gebrauch.
Verschiebbare Baugerüste aus Tribüne, Turm und Bühne ermöglichen flexible Szenarien – vom Konzert, über Kleidertausch, bis zum täglichen Gebrauch.







Weitere Projekte
Interior Design & Branding
Sommer 2024
Valentina Hairstylist

Interior Design
Sommer 2024
VIU Office

Interior Design
Frühling 2022
Too Good To Go

Interior Design & Branding
2020 bis 2022
Ferienhaus Itelfingen

Interior Design & Branding
Sommer 2019
Stettbacher Café

Interior Design & Branding
Frühling 2024
Feinkostladen

Interior Design & Branding
Sommer 2024
Valentina Hairstylist

Interior Design
Sommer 2024
VIU Office

Interior Design
Frühling 2022
Too Good To Go

Interior Design & Branding
2020 bis 2022
Ferienhaus Itelfingen
